technical data Power-Lock Selection and Procedure
If you would like to see the selection procedures and important points, please proceed below.
If you would like to narrow down or tentatively select a product series,
Please click here.
If your usage conditions have been decided and you would like a detailed selection,
Please click here.
Selection of KE, KE-KP, KE-SS, and KE-LP series
1. Check the maximum torque and thrust load
The maximum torque and thrust load are calculated by Service factor in the transmission capacity.
*When connecting a servo motor or stepping motor, use the maximum torque (peak torque) of each as the maximum generated torque (Tmax).
| SI units |
|---|
|
Tmax = 9550 × H n ・f Tmax = Maximum torque (N・m)
|
| Gravity Units |
|---|
|
Tmax = 974 × H n ・f Tmax = Maximum torque (kgf・m)
|
Pmax = Pax・f
- Pmax: Maximum thrust load kN{kgf}
- Pax: Thrust load kN{kgf}
- f: Service factor
f: Service factor
| Load Condition | Service factor | |
|---|---|---|
| Smooth load without shock | Small inertia | 1.5~2.5 |
| Light shock load | Medium inertia | 2.0~4.0 |
| High impact loads | Large inertia | 3.0~5.0 |
When only torque is applied
Compare the Tmax obtained above with the catalog transmission torque Mt.
Mt ≧ Tmax → Can be used.
Mt < Tmax → Consider increasing the model number or using multiple units.
When torque and thrust load are applied simultaneously
The combined load M R is calculated and compared with the transmitted torque M t.
MR = Tmax2 + (Pmax × d 2 )2
- Tmax: Maximum torque N・m{kgf・m}
- Pmax: Maximum thrust load N{kgf}
- d: shaft diameter m
Compare the M R calculated above with the catalog transmission torque Mt.
M t ≧ M R → Can be used.
M t < M R → Consider increasing the model number or using multiple units.
*This series can be used with multiple units. When using multiple units, multiply Mt by the multiplier shown in the table below to determine the transmission torque.
| Number used | 1 | 2 | 3 | 4 |
|---|---|---|---|---|
| Magnification | 1 | 2 | Not possible | Not possible |
2. Consideration of the axis and boss
(1) Consideration of material strength
A large surface pressure acts on the shaft and boss when fastened. Use shaft and boss materials with a strength that satisfies the following formula.
σ0.2S≧ 1.2 × P σ0.2B≧ 1.2 × P'
- P: Shaft side pressure MPa{kgf/mm2}
- P': Boss side pressure MPa{kgf/mm2}
- σ 0.2S: Yield stress of shaft material used MPa{kgf/mm2}
- σ 0.2B: Yield stress of the boss material used MPa {kgf/mm2}
Please refer to the steel material strength table, which shows the yield point values of representative steel materials.
(2) Consideration of outer hub diameter
Please refer to the KE series Major Specifications page.
For materials not listed in the table, calculate the required outer hub diameter using the following formula.
outer hub diameter D N ≧ D σ0.2B + K3・P' σ0.2B - K3・P'
- D N: Outer hub diameter mm
- D: Hub diameter mm
- P': Boss side pressure MPa{kgf/mm2}
- σ 0.2B: Yield stress of the boss material used MPa {kgf/mm2}
- K3: Hub geometry factor (please refer to Major Specifications page for each product.)
(3) Consideration of the inner diameter of the hollow shaft
Calculate the hollow shaft inner diameter using the following formula.
Hollow shaft inner diameter d B ≦ d × σ0.2S - 2・P・K3 σ0.2S
- d B: Hollow shaft inner diameter mm
- d: shaft diameter mm
- P: Shaft side pressure MPa{kgf/mm 2}
- σ0.2S: Yield stress of shaft material used MPa{kgf/mm2}
- K3: Hub geometry factor (please refer to Major Specifications page for each product.)
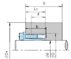
3. Radial load
When a radial load acts on Power-Lock, such as in a belt drive, calculate the surface pressures Prad and P'rad on the shaft and hub sides that will be generated by the radial load using the following formula. Compare the surface pressures on the shaft and hub with the surface pressures listed in the catalog to ensure that they are within the allowable values in Table 3.
Prad = 1.3 × Pr d × ℓ
P'rad = 1.3 × Pr D × ℓ
- Pr: Radial load N{kgf}
- ℓ: Contact surface width between boss and outer ring mm
- d: shaft diameter mm
- D: hub diameter mm
- P: Shaft side pressure MPa{kgf/mm 2}
- P': Boss side pressure MPa{kgf/mm2}
To calculate the required outer hub diameter Dn and hollow shaft inner diameter dB when such a radial load is applied, add Prad and P'rad to P and P' respectively.
| Series | Prad(P'rad)/P(P') |
|---|---|
| KE | 20% or less |

